Budenberg Haus, 34 Woodfield Road, Altrincham
7 Photos
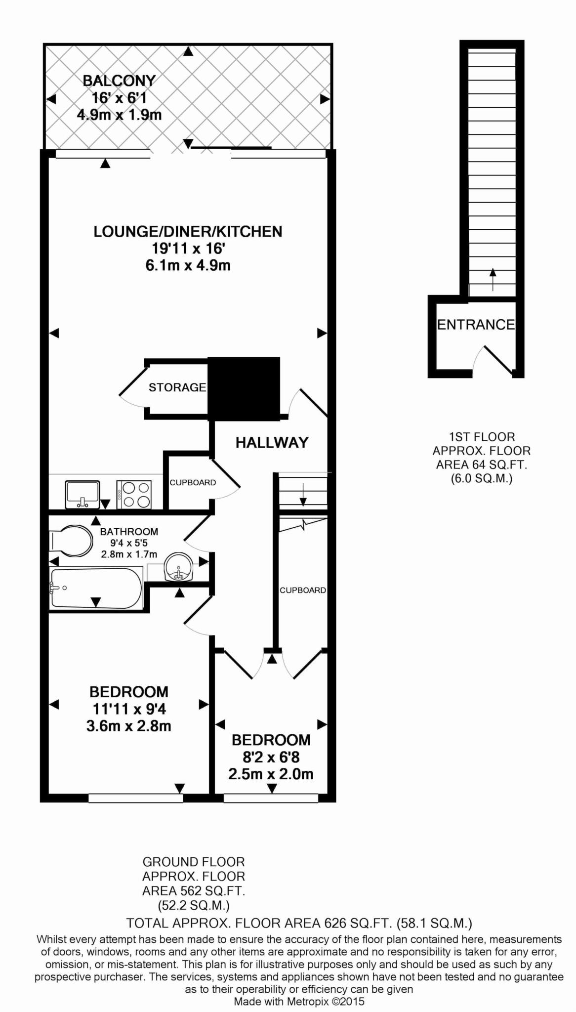
Floor Plan
Virtual Tour
Map
Price £1,200 pcm
Request a Viewing
Type
Bedrooms
Bathrooms
Apartment, To Let
X 2
X 1
Property Description
Located in a historic market town in Cheshire, the nautical shape of Budenberg Haus Projekte brings prefabricated living to Altrincham. Set within idyllic communal grounds and home to a few members of Manchester`s famous Cow Exhibition, the development is ideal for residents requiring a quirky design concept within a tranquil waterside environment.

The development benefits from a secure communal entrance with lift service to all floors.

Comprises: Entrance/hallway with staircase down to an open plan living/dining area with access to balcony, fully integrated modern kitchen with storage cupboard, double master bedroom with under stair storage, further single bedroom and luxury bathroom.

Available 24/11/2025 on a fully furnished basis with parking space

To arrange a viewing please contact Goodwin Fish - Deansgate