Willis Road, Haddenham
Under Offer
15 Photos
Floor Plan
Map
Price £375,000
Request a Viewing
Type
Bedrooms
Bathrooms
Semi-Detached
X 3
X 1
Property Description
Harpers are delighted to present this charming 3-bedroom family home, brimming with potential and offering an excellent opportunity for those looking to add their own style and stamp.

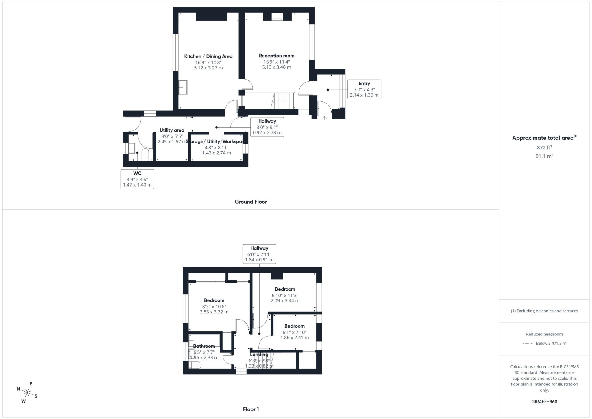
Entering through the porch, you`re greeted by a bright and generous living/reception room, where a log-burning stove could be added to create a wonderfully cosy focal point. The spacious kitchen/dining area is perfectly sized for transforming into a contemporary family space, and the ground floor is further enhanced by a handy WC and a flexible utility/workroom suited to storage, laundry, or creative projects.

Upstairs, the property offers a generous double bedroom and a second double currently arranged as two separate rooms thanks to a stud partition wall, providing flexibility for those needing an extra bedroom, nursery, or home office. A family bathroom completes the first floor.



Externally, the property boasts off-street parking to the front and a large, mature rear garden an excellent space for children, entertaining, or future landscaping. The home could also benefit from a rear extension, subject to the usual planning permissions, allowing buyers to unlock additional space if desired.



Further benefits include a full rewire carried out last year and a new boiler installed around 2022, offering peace of mind to future owners. The property is perfectly located for short walks to local schools, shops, and everyday amenities, making it an ideal choice for families or those seeking convenience.




Note on layout: Originally built as a 2-bedroom home, this property has been enjoyed as a 3-bedroom dwelling for many decades, and the current layout reflects this long-established use.