Oxford Road, Stone
17 Photos
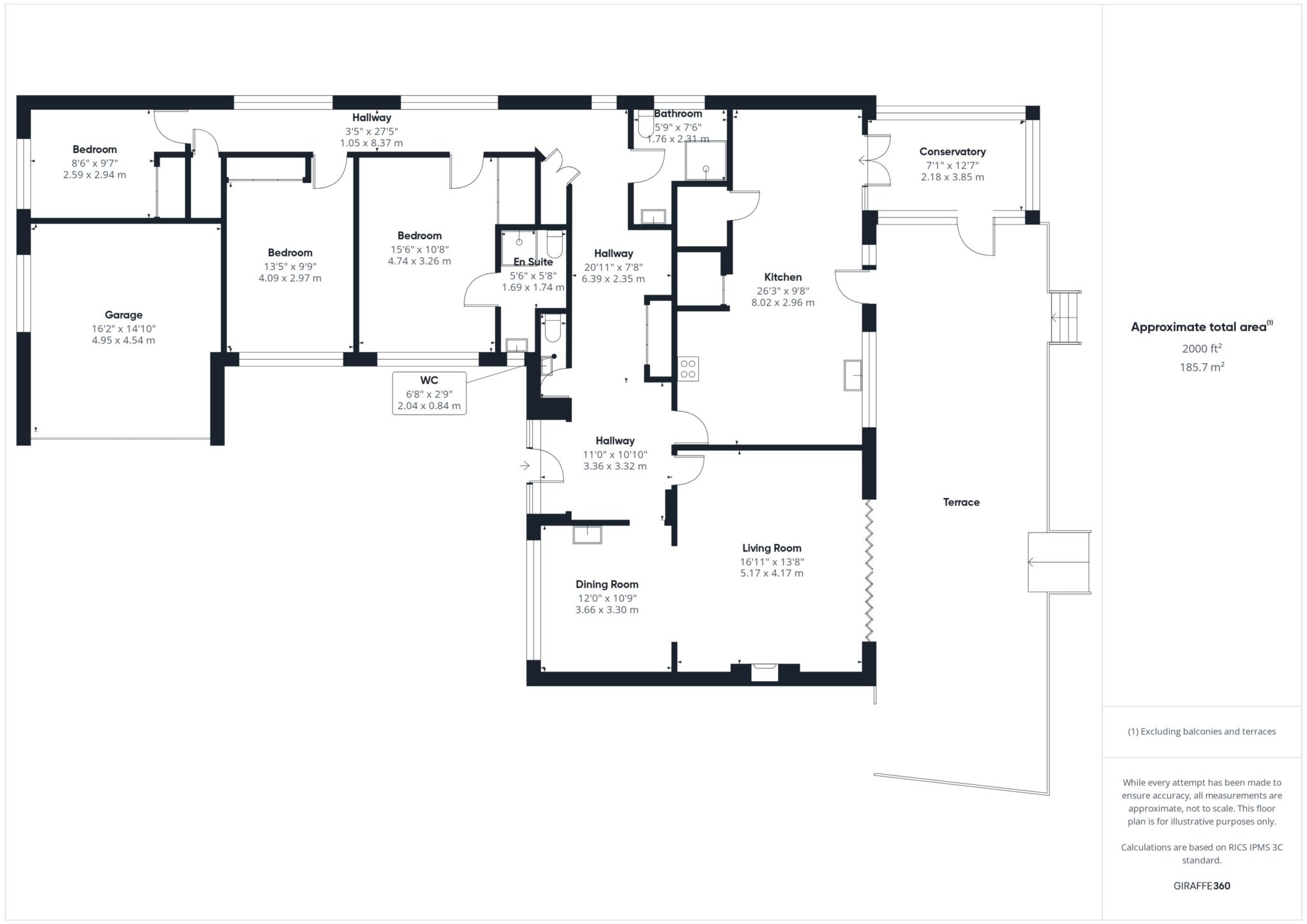
Floor Plan
Virtual Tour
Map
Price £735,000
Request a Viewing
Type
Bedrooms
Bathrooms
Detached Bungalow
X 3
X 2
Property Description
Spacious three bedroom detached bungalow located in the desirable village of Stone. Offered with no upper chain, this property features multiple reception rooms, a kitchen/diner, three bedrooms with en suite to the master, wet room, cloakroom and a generous garden. Benefits include a large driveway, garage, and a peaceful village setting ideal for those seeking single-level living with ample space both inside and out.

Location - Stone is situated to the south west of Aylesbury and has good transport links by road to the M40 and by rail into London Marylebone at nearby stations in Aylesbury and Haddenham. Stone has a well-regarded combined Church of England School and amenities in the village including a convenience store, petrol station, Indian restaurant and local pub. The village is surrounded by open countryside with many opportunities for dog walking.

Accommodation - Upon entering the bungalow, you`re welcomed into a generously sized hallway featuring multiple built-in storage cupboards, providing plenty of space to keep the home neat and organised.

The living accommodation includes a bright and airy dining room, perfect for entertaining, and a spacious living room with bi-fold doors opening directly onto the rear garden, seamlessly blending indoor and outdoor living.

The kitchen/diner is well-equipped with an inset gas hob, oven and splashback, with ample space for appliances. A dining area within the kitchen includes additional built-in storage cupboards, making it both practical and welcoming for everyday family meals.

A charming conservatory adds further living space and offers lovely views of the garden, ideal as a sitting room or home office.

The property comprises three well-proportioned bedrooms, all of which benefit from built-in wardrobes, providing ample storage solutions. The main bedroom has an en suite shower room.

A wet room offers easy-access shower facilities, while a cloakroom adds further convenience for family living.

Externally, the bungalow boasts an attractive rear garden with a large patio area, lawn, and well-established trees and shrubs, creating a peaceful and private outdoor space. The front garden is equally generous, featuring a combination of lawn, gravelled and patio areas, along with a large driveway offering off-street parking for multiple vehicles and access to a garage.