Cuddington Court, The Green
24 Photos
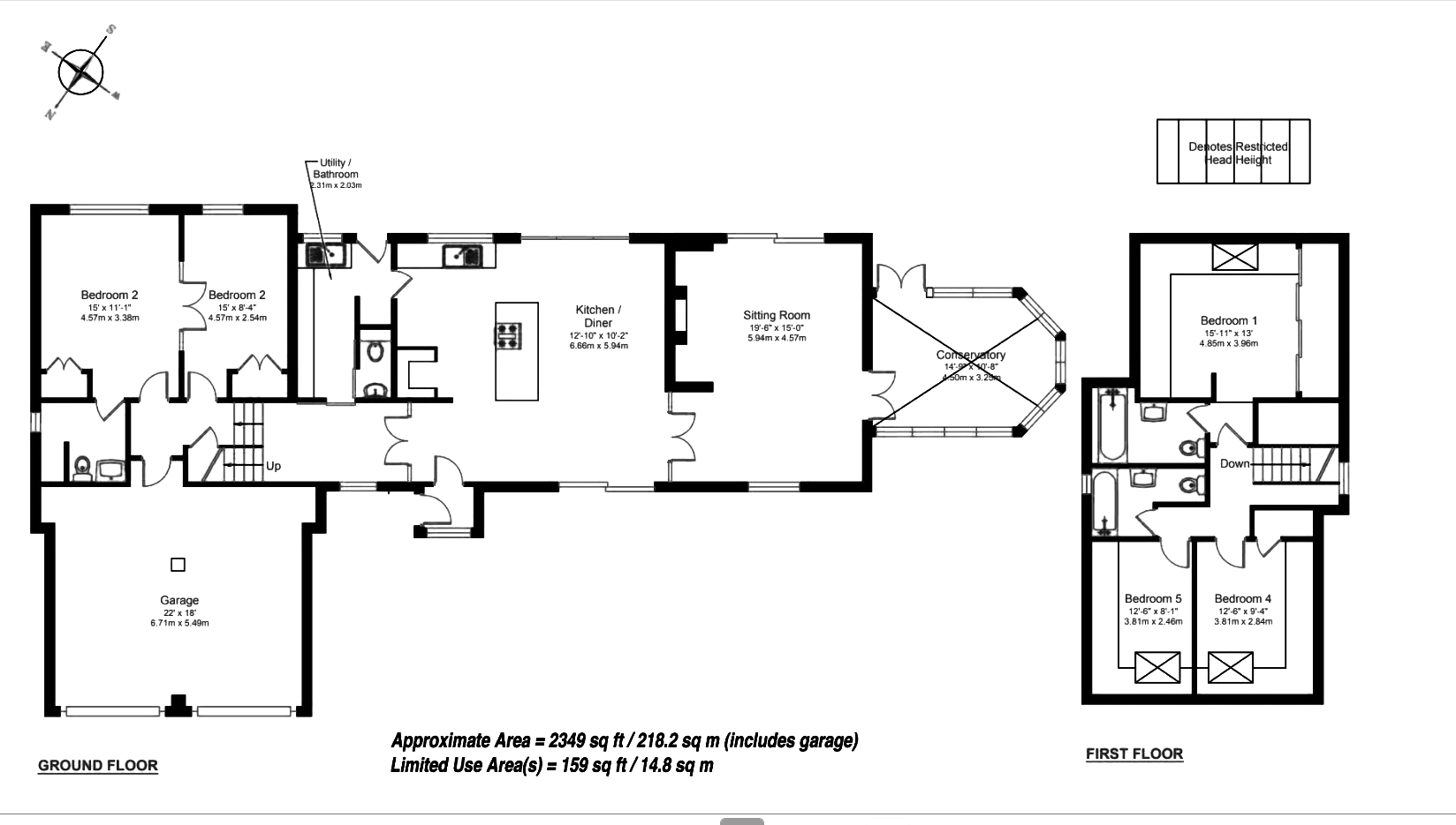
Floor Plan
Map
Price £1,250,000
Request a Viewing
Type
Bedrooms
Bathrooms
Detached
X 5
X 2
Property Description
A rare opportunity to purchase a recently renovated 5 bedroom barn conversion, finished to an exceptional standard and set within an exclusive development of just four bespoke barn conversions. This outstanding home effortlessly blends luxurious modern living with timeless rural character, offering the perfect balance of style, comfort, and practicality in a sought after village setting.



The property has been fully refurbished throughout, featuring beautiful oak flooring and showcasing its original beams and timbers. Upon entering through a welcoming porch, you`re greeted by a stunning open plan kitchen and dining area with a Mediterranean feel. The bespoke kitchen includes a micro-cement island and counter tops, complemented by a bifolding window behind the butler`s sink, seamlessly connecting the indoors to the garden. Large sliding doors open directly onto the terrace, creating a wonderful flow for indoor-outdoor living and entertaining.



Steel framed glazed doors lead into the inviting living room, where the impressive inglenook fireplace forms the heart of the space perfect for cosy evenings. Beyond, a bright and airy conservatory offers a peaceful spot to relax while overlooking the garden.

Behind the kitchen lies a beautifully designed wooden-clad utility and boot room, complete with garden access, a downstairs WC, utility sink, plumbing for a washing machine and tumble dryer, and ample storage space.

The main bedroom is conveniently located on the ground floor and benefits from a stylish recently refurbished en suite. A second bedroom is currently used as a dressing room but could easily serve as a nursery or be reinstated as a fifth bedroom.



Upstairs, there are three generous double bedrooms. One benefits from its own en suite, while the remaining two share a well appointed family bathroom. The first floor also includes extensive loft storage running the full width of the barn.



Externally, the property occupies a generous corner plot extending to approximately 0.3 acres. The wraparound garden enjoys a sunny southerly aspect and offers a high degree of privacy, with mature trees, shrubs, and two lawned areas. Thoughtfully landscaped for outdoor living, the garden features a covered terrace ideal for al fresco dining, a dedicated barbecue patio, and a raised covered upper deck, the perfect spot to take in the evening sunsets and the distant views towards the hills of Upper Winchendon.



To the front, there are two private parking spaces as well as an integral double garage with power, lighting, and internal access to the hallway. The property also benefits from a new external oil-fired combi boiler fitted in 2023, PV solar panels, and an electric car charging point. Additional touches include an external hot and cold water tap in the rear garden and outdoor power outlets for convenient use around the driveway and garden.

This exceptional home combines character, craftsmanship, and contemporary convenience, a truly rare find in an exclusive rural setting.

Location:

Cuddington is an award-winning village renowned for its beauty, heritage, and strong community spirit home to around 550 residents and a multiple winner of the Best Kept Village Award. Nestled amidst rolling Buckinghamshire countryside, the village combines idyllic rural living with easy access to nearby towns and transport links.



Footpaths lead in four directions directly from the property, offering a variety of scenic circular walks through open fields and along the River Thame just a 20-minute stroll away via a picturesque track and footbridge.

The village offers an excellent range of local amenities within easy walking distance, including The Crown, a popular village pub, a well stocked Village Store, St Nicholas Church, and the Village Hall, all less than five minutes away.

For leisure, the playing fields, children`s playground, and tennis club are within a 10-minute walk.

For families, Cuddington and Dinton C of E School is just a five-minute walk across the field and over a small stream to the infant site, with a school bus serving the junior site in nearby Dinton. The property also falls within the highly sought-after Aylesbury Grammar School catchment area.

Excellent transport links include Thame & Haddenham Parkway Station, just a 5-minute drive away, offering direct services to London Marylebone in under 40 minutes. The market town of Thame is a 7-minute drive, while Aylesbury lies only 10 minutes away, providing extensive shopping, dining, and recreational facilities.

With its rare combination of countryside tranquillity, village charm, and modern convenience, this exceptional barn conversion in Cuddington offers an outstanding lifestyle opportunity.


Additional information
EPC rating F
Flood risk (according to Gov.uk website)
Surface water - Very low
Rivers and the sea Very low
Flooding from groundwater is unlikely in this area.
Flooding from reservoirs is unlikely in this area.
Covenants: The vendor has not made us aware of any known covenants nor restrictions relating to the property.
Broadband type: Cable (fibre)
Standard - Highest Download 12 Mbps Highest Upload 1 Mbps
Superfast Highest Download 71mbps Highest Upload 18 Mbps
Ultrafast - Highest Download 1800 Mbps Highest Upload 220 Mbps
Networks in your area: Openreach
See Ofcom checker for more details